1. はじめに
「小屋 が狭くなったので広くしたい」
そんな要望からこのDIYは始まりました。
既存小屋を広く拡張するDIYを行います。
新たに屋根を設けて小屋自体を延長します。

奥に見える黒い小屋が既存のもので
その手前側を新たに延長しました。
DIYすることで既存の小屋をそのまま使い
より便利に使いやすくできます。
ここではアルミフレームやパイプ(G-fun)を
使ったDIYを紹介していますが、
オンライン共同DIYも行なっています。
これはアルミフレームやパイプのDIYを
一緒に協力しながら行う活動です。
アルミフレームやパイプはとても便利な材料で
木材にはない優れた特性がありますが、
普段身近にないため使い方がわからない
という欠点があります。
そこでアルミフレームやパイプの使い方や選定、
設計などをアドバイスしながら初めての人でも
安心してDIYできるようにするものです。
これまでの共同DIY事例はこちらで見れます。
アルミパイプやアルミフレームを使ってみたいという方と一緒に共同DIYを行っています。これらの材料はとても便利ですが入手性の悪さからあまり知られていません。そのため部品選定や使い方、加工、組立方法など初めての人はわかりにくいです。そこで共同DIYでは誰もが扱えるようにサポートしています。
フレームDIYラボを詳しく知りたい場合は
プロフィールや活動内容、実績など
こちらから見ることができます。
フレームDIYラボのプロフィールや活動内容、実績などを紹介しています。2016年10月からスタートし、当初は自分で作ったものを紹介するサイトでした。しかしアルミを使ったDIYの需要が多く、今ではオンラインによる共同DIY活動がメインです。アルミフレームやパイプに興味がある方は是非ご覧ください。
2. 相談内容
今回の相談者は岡山県在住のMさんです。
こちらはMさんからいただいた相談内容です。
webで見つけてメッセージ送ってます。
既存の自転車小屋を拡張したいと考えています。
アドバイスを宜しくお願いします。
見た目が継ぎ接ぎなのは気にしません。
以下の点がよくわかりませんので教えて下さい。
①家の壁との繋ぎ目、雨漏り対策
②既存部分との繋ぎ目。波板を一枚被せればよい?
③家の窓を隠したくない
④増設部分の固定方法
簡単で適切な固定方法が有れば教えて下さい。
ご自宅にはすでに物置小屋が設置されています。
波板とスチールで作られた物置小屋です。

ただ荷物が増えてしまいこの小屋だけでは
収納が不足するようになりました。
そこで小屋を利用しつつ手前側のスペースを
使って小屋を拡張するDIYを行います。
延長サイズは奥行き3.3m、幅2.4mです。
屋根の傾斜は既存小屋に合わせて作ります。
こちらはMさんからいただいたスケッチです。

屋根と側面に波板を取り付けます。
途中、窓があるのでは視界を遮らないよう
この部分は開放することにします。
DIYは自分の好きな形にアレンジできる点が
良いところです。
あるものを利用しつつさらに使いやすくする
とても良いアイディアだと思います。
3. 小屋 、自転車置き場 DIY
3.1 小屋 、自転車置き場 材料
使用する材料はアルミパイプ(G-fun)です。
アルミパイプは雨に濡れてもサビないので
屋外のDIYに最適です。
イレクターパイプと似ていますが、
全く異なる特徴があります。
家庭DIYで利用する金属パイプにイレクターパイプがあります。アルミパイプも同様な用途で利用できますが、イレクターパイプよりも優れた特徴がいくつもあります。ここではイレクターパイプとの比較やアルミパイプの種類について、詳しく紹介しています。
これまでもアルミパイプと波板を使って
小屋や自転車置き場を作ってきました。
基本的には同じ方法で今回も作ります。
宮崎県に住むSさんは勝手口に洗濯物を干されますが、火山灰に悩まされていました。さらに隣が空き地のため道路から視線を遮るものがありません。そこで勝手口に屋根を目隠し壁をDIYしました。材料はアルミパイプと波板を使い、独立基礎を作って固定しています。今ではとても快適に安心して洗濯をされています。
木製のテラス屋根が古くなったためアルミパイプと波板を使ってテラス屋根を共同DIYしました。幅3m、奥行き8m、高さ3mのテラス屋根で地面には芝生、壁は緑で目隠しをした隠れ家的な空間です。私も欲しいと思うほどの快適空間が実現。初めてアルミパイプを扱う方ですが、立派なテラス屋根を作られています
車庫と畑の間の空いたスペースにアルミパイプと波板を使って自転車置き場をDIYしました。黒塗装パイプを使い、奥にある目隠しフェンスと色を合わせることで全体の統一感が得られています。屋根は角度調整コネクタを使い傾斜が調整可能です。野地板を横に貼り付けて雨が横から入りにくいようにしました。
屋根を支えるために新たに柱を設けますが
これは独立基礎で固定します。
アルミはコンクリートに直接入れて
固められるので基礎を作りやすいです。
コンクリートブロックを使った独立基礎の
作り方はこちらの記事でまとめています。
屋外で柵やテラス、ウッドデッキを作るときに独立基礎は欠かせません。ここではコンクリートブロックとモルタルで作る独立基礎を紹介します。セメントを使うと難しそうですがそんなことはありません。誰でも簡単に作れる方法で、しかもとても安く作ることができますよ。
屋根材と壁材には波板を使用します。
波板の形状とアルミパイプの形は同じなので
パイプの上に乗せてそのまま固定します。
アルミパイプと波板の取付方法は動画で
見ることができます。
今回はこれらの材料を使って小屋の延長を
していきます。
3.2 小屋 、自転車置き場 設計
アルミパイプ(G-fun)は専用の3D CADで
設計することができます。
ソフトはメーカから無料で提供されており、
誰でも自由に利用することができます。
インストール方法や簡単な使い方は
こちらの記事で紹介しています。
アルミフレームやアルミパイプには専用の3D CADが無料で提供されています。そのためこれを使えば作る前に色んな角度から見ることが可能となり、設計ミスが少なくなります。さらに部品の長さや種類、数なども自動で計算してくれるので部品手配ミスや加工ミスも低減することができます。
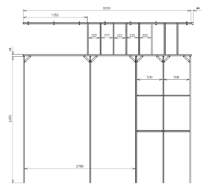
こちらがMさんと設計した小屋拡張になります。
使用するアルミパイプは直径28mmです。


アルミパイプには4種類のサイズがあります。
強度や用途に応じて使い分けることができ
かつ併用することも可能です。
アルミパイプの種類についてはこちらの動画で
紹介しています。
右端の1本だけ角度が異なるパイプは
既存小屋の屋根縁に取り付けるものです。
ここではサドルを使って固定します。
この部分は既存屋根の角度に合わせるため
現地合わせになります。
この角度調整には特殊なコネクタRを使います。
部品が豊富にあるので使い分けがポイントです。
住宅の壁にもサドルを使って梁となるパイプを
取り付けます。
住宅側は柱を設けず梁パイプだけで支えます。
対面のブロック塀側にはアルミパイプを使って
新たに柱を設けます。
この上に梁パイプを固定し住宅側梁パイプ間に
屋根下地パイプを取り付けます。
そしてこの上に波板を固定して屋根とします。
屋根の傾斜は二通りの作り方がありますが、
今回は既存屋根に合わせるため
角度調整コネクターを使用します。
これを使えば好きな角度に合わせられるので
調整がとても簡単です。
屋根波板は1枚あたり3本のアルミパイプを
使って固定します。
波板の両端と中央にそれぞれパイプを合わせて
直接ビスで固定します。
壁材の波板は余ったパイプを再利用して
使うことにしました。
これで設計は終了です。
3.3 小屋 、自転車置き場 製作
CADによる設計が終了すればメーカに
見積もりをもらって手配します。
パイプは長いもので2m以上ありますが、
送料無料で運んでもらえるので大変便利です。
アルミパイプの組立作業は六角レンチ1本で
簡単に行えます。
取り扱いが非常に簡単で初めて触る人でも
すぐ扱えます。
こちらの動画ではパイプ同士の連結方法を
紹介しています。
ただ初めて見る材料なのでどの部品をどこに
使うかがすぐにわかりません。
そこで私の方で組図を作って渡しています。
これは組立手順のようなものでこれを見れば
どの部品はどこで使うのが一目瞭然です。

屋根パイプの長さが現地合わせになるため
設計では計算できません。
そこで少し長めの材料を用意してMさんに
現地で切断して使ってもらうことにしました。
アルミパイプの切断は百均にある工具でも
簡単に行うことができます。
動画ではアルミパイプの切断方法が見れます。
またパイプを切断するときはコネクターの
長さも考慮に入れる必要があります。
これを知らずに切断すると長さが合わないので
注意して下さい。
この動画ではその辺を詳しく説明しています。
まずは既存小屋の屋根にアルミパイプを
固定します。
サドルを使って直接固定しました。


次は住宅壁に梁パイプを固定します。
こちらもサドルを使いました。
途中に雨どいがありますが、アルミパイプは
雨樋と壁の間を通すことができます。
これが結構便利です。
梁パイプと屋根に固定したパイプの連結に
コネクタRを使用しています。


次はブロック塀側に柱を立てて梁パイプを
固定して屋根下地パイプを取り付けます。
屋根下地パイプの傾斜は角度調整コネクタを
使って調整しています。



最後は波板を取り付ければ完成です。
設計通りの仕上がりとなっており
既存小屋が延長されています。


まだ屋根一部の取り付けやタイル貼りが
残っており最終的には行う予定です。
住宅窓の部分は壁を設けずに開放します。
今ある小屋を改造して広くすると言う事は
なかなか難しいですが
アルミパイプを使うことで作れました。
これで小屋の収納量も大きく増えるので
大変便利になると思います。
4. さいごに
今回はアルミパイプを使って既存小屋の
延長DIYを行いました。
既にあるものを改造したり拡張することは
なかなか難しいと思います。
しかしアルミパイプは角度を自由に調整でき
軽くてコンパクトで作りやすいので
このようなDIYを行うことができます。
材料自体は細くても金属なので木材に比べて
強度もあり使いやすいです。
しかも六角レンチ1本で組み立てられるので
作業自体も簡単です。
初めてDIYする人でも利用できると思います。
またサドルなどの部品も豊富にあるので
一緒に準備できて大変便利です。
もし今ある小屋を改造したい場合などに
利用してみてください。
DIYは世の中にない自分にピッタリなものを
手に入れる唯一の手段だと思います。
しかしイメージをそのまま形にする事は
よほど経験がないとできません。
イメージを完成物につなげる活動です。
これは物だけでなく人も繋げます。
同じような物置屋根を作りたい時は
実際に作ったHさんと繋がることができます。
このように物と人を繋げる事で
一人では手が届かなかったものを
DIYを通してみんなで完成させます。
こんな温かいDIYがもっと広がって、
みんなが欲しいものを作れるといいですね。
この記事が皆さんのお役に立てれば幸いです。
アルミフレームやパイプを使ったDIYを
一緒にしてみませんか?
DIYする時間や工具がない
普段DIYをしないので自信がない
そんな方にも安心で手間がかからず
欲しい物が手に入る共同DIYです。
一人で考えるよりも複数人で考えた方が
よりいいアイデアも生まれます。
まず設計や構想は御自分で考えて
欲しいものをイメージしてください。
もし自分で加工から組み立てまでされる方は
必要に応じてアドバイスを致しますし、
手間な部品手配や加工をしたくない方は
こちらで設計して組み立てる状態の部品を
お送りすることもできます。
初めて使う材料で不安な方も安心して
チャレンジすることができますよ。
気に入った物が見つからない場合は
試してみては如何でしょうか?
詳しいサポート内容や進め方は
こちらで説明しています。
またこの材料を簡単に入手したい人向けの
サービスも実施しています。
1日以内にSUS社製商品のお見積りを
提出しています。
ホームセンターで入手できない部品も
こちらだと簡単に入手できます。
これまでのサポート事例はこちら。
「サポート事例集」
詳しくアルミフレームやアルミパイプを
知りたい方は動画で実物を使った説明や
DIYしている様子を見ることができます。
同じような方法で作ったDIY事例集です。
アーネストワン建売住宅には軒がほとんどないので雨よけする場所がありません。そのため外に置いてる自転車や道具が雨に濡れてしまいます。そこでアルミパイプを使った屋根のある自転車置き場をDIYしました。8×1.8×2.5mと大きな置き場ですが、5万円ほどで作れます。しかも補強や基礎をしっかりすることで大型台風が直撃しても壊れませんでした。
子供の自転車を保管する場所がなく玄関内に置いていましたが、場所を取るので玄関が狭い・・・。そんな悩みから玄関のすぐそばに屋根を付けて自転車置き場を共同DIYしました。元々屋根がなかったので特に使っていなかったスペースが屋根を付けることで便利なスペースへと生まれ変わりました。
扉を開けるとそこは雨・・・(涙)そんな状況を克服するために勝手口に幅5m、高さ2.5mの屋根をアルミパイプで共同DIYしました。隣家までの距離が0.6mしかありませんが、屋根があることでゴミ箱など置ける便利なスペースに早変わり。土日で完成するくらいの誰でもできる内容となっています。
テラス屋根 を新たにアルミフレームとポリカ板でDIYしました。見た目に手作り感がなくキレイな屋根で幅2.5m、奥行き1.0mとなっています。アルミフレームで傾斜を付けており、強度もしっかりしています。目隠しパネルや物干し竿を付けたり、サンルームにしたりと様々な応用が可能です。



