1. はじめに
ベランダ にサンルームが欲しいなぁ
そんな願望からこのDIYは始まりました。
2Fベランダの一部をサンルームにDIYします。
実際に作ったサンルームはこちらです。


材料はアルミフレームとアクリル板です。
扉や窓もあり使い勝手もバッチリです。
ベランダの動線もちゃんと残しています。
最初から据え付けられたような外観で
とてもDIYで手作りしたとは思えません。
ここではアルミフレームやアルミパイプを
使ったDIYを紹介していますが、
オンライン共同DIYも行なっています。
これはアルミフレームやパイプのDIYを
一緒に協力しながら行う活動です。
アルミフレームやパイプはとても便利な材料で
木材にはない優れた特性がありますが、
普段身近にないため使い方がわからない
という欠点があります。
そこでアルミフレームやパイプの使い方や選定、
設計などをアドバイスしながら初めての人でも
安心してDIYできるようにするものです。
この材料の包括的な内容はこちらの記事で
詳しく紹介しています。
アルミフレーム やG-fun使ってDIYしたい人は必見!初心者でもわかるように基本知識から動画による部品紹介や作業方法の説明、ホームセンターや通販での購入方法まで解説しています。毎年100件近くのDIYをしているため製作事例も豊富にそろえています。きっとあなたが作りたいものが見つかりますよ。
フレームDIYラボを詳しく知りたい場合は
プロフィールや活動内容、実績など
こちらから見ることができます。
フレームDIYラボのプロフィールや活動内容、実績などを紹介しています。2016年10月からスタートし、当初は自分で作ったものを紹介するサイトでした。しかしアルミを使ったDIYの需要が多く、今ではオンラインによる共同DIY活動がメインです。アルミフレームやパイプに興味がある方は是非ご覧ください。
この記事ではこのベランダサンルームの
DIYについて詳しく紹介します。
2. Aさんの相談内容
ベランダサンルームは兵庫県に住むAさんと
一緒に作りました。
Aさんからいただいた相談内容です。
制作事例を見て希望するものと同じだと思い、
連絡させていただきました。
ベランダに屋根はあるもののいびつな為に、
エクステリア業者では出来ませんでした。
何卒よろしくお願い致します!
ベランダに観葉植物を育てるサンルームを
オンライン共同DIYで作ったことがあり、
そちらの記事を見てご連絡いただきました。
住宅のベランダに観葉植物用サンルームを共同DIYしました。ベランダ窓を開ければそこは植物園のようなサンルームとなっています。アルミフレームとアクリル板を使ってベランダに突っ張って固定して取り付けています。六角レンチやスパナなどで組立て可能な造りとなっています。
テラス屋根 を新たにアルミフレームとポリカ板でDIYしました。見た目に手作り感がなくキレイな屋根で幅2.5m、奥行き1.0mとなっています。アルミフレームで傾斜を付けており、強度もしっかりしています。目隠しパネルや物干し竿を付けたり、サンルームにしたりと様々な応用が可能です。
こちらがAさんの2階ベランダの様子です。


2F全体にベランダがあり上から見ると
L字型になっています。
サンルームを作る場所はちょうど角にある
少し広くなった場所です。

この場所は一部屋根も付いていますが
雨天時は雨が入り込み濡れてしまいます。
ここをサンルームにするためには
側面と正面を囲う必要があります。
相談文でもあるように市販のサンルームでは
ここにピッタリに作ることはできません。
しかしDIYであればそれが可能です!
ここからはAさんと一緒に二人三脚で
DIYが始まります。
3. ベランダ サンルーム ポイント
2階ベランダをサンルームにするにあたって
いくつかポイントがあります。
3.1 側面の空きスペース
ベランダの奥のほうに柱がありますが
壁と柱の間に空きスペースがあります。
(写真左側)
この部分はサンルーム本体とは別に
埋める必要があります。

3.2 サンルーム正面
サンルーム正面には開閉できる窓を作ります。
ここが最も面積が広く大きな窓になります。
しかし現状は洗濯物干しが取り付いており、
これが邪魔になります。

3.3 サンルーム左側面
正面から見て左側面にも窓を作ります。
こちらはすぐ側に柱があるのでこの柱と
ベランダ手すりの間で窓をつくります。
3.4 サンルーム右側面
正面から見て右側面には扉を作ります。
元々ベランダは屋根の下の扉から
全てつながった動線があります。
この動線を崩さないためにも行き来できる
扉を作ります。
サンルームは住宅の壁とベランダの手すりを
埋めるような形で作ります。
そのため現地寸法に合わせて材料を加工して
ピッタリに作る必要があります。
4. ベランダ サンルーム 製作
4.1 ベランダ サンルーム 材料
使用する材料はアルミフレームと
アクリル板です。
アルミフレームは企業や工場などでは
一般的によく使われる材料ですが、
家庭DIYで見ることはあまりありません。
金属のアルミで出来ており錆びずに
強度もあるため使い勝手の良い材料です。
アルミフレームは断面サイズで分類されており、(15×15mm)から(100×100mm)まで幅広いラインナップとなっています。断面形状も正方形だけでなく、長方形もあります。そのため用途に応じて使い分けが可能で、例えばカーポートから小さな棚まで幅広いDIYに適応できます。
フレームサイズは30mmを使用します。
フレームでサンルーム枠組みを作って
そこにアクリル板を取り付けます。
アクリル板は透明の3mm厚を使用します。
アルミフレームはポリカ板やアクリル板との
相性がとても良い材料です。
最近はカーポートなどのサイドパネルを
アルミフレームとポリカ板で作る人が多いです。
アルミフレームでカーポートサイドパネルを製作する際の種類や費用をまとめました。フレーム種類、パネル材種類、取付方法などサイドパネルは色んなバリエーションがあります。自分に合ったタイプを選んで作れるので、もし自作する場合の参考にしてください。
カーポートサイドパネル をアルミフレームとアルミ複合板を使って自作DIYしました。幅6.9m、高さ1.2mのサイドパネルで横からの雨や視界を遮ってくれます。カーポート柱に固定するだけで設置できるので簡単です。サイズは自由に変更できるので欲しい部分だけを狙ってパネルを取り付けることもできます。
アルミフレームとポリカ板を使って既存カーポートにサイドパネルをDIYしました。高さ約1m、幅約3mのサイズで雨や風が入り込むことはありません。ポリカ板にマット処理をしているので外から中の様子が見えずにプライバシーも確保できます。初めて使う材料でしたが、約6時間で完成しました。
サイクルポート雨避けパネルをアルミフレームとポリカ板で後付けDIYしました。既存サイクルポートに0.8×2.5mサイズのパネルを取り付ければ雨に濡れることもありません。見た目もオシャレなので手作り感がなく、木材に比べて長持ちします。CADで設計するため取付方法も事前に検討できます。
4.2 ベランダ サンルーム設計
アルミフレームを使ってDIYする場合、
専用の3D CADソフトが利用できます。
このソフトはメーカから無料で提供されており、
誰でも自由に利用することができます。
インストール方法や簡単な使い方は
こちらの記事で紹介しています。
アルミフレームやアルミパイプには専用の3D CADが無料で提供されています。そのためこれを使えば作る前に色んな角度から見ることが可能となり、設計ミスが少なくなります。さらに部品の長さや種類、数なども自動で計算してくれるので部品手配ミスや加工ミスも低減することができます。
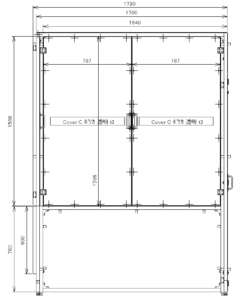
こちらが2人で考えた設計図です。



Aさんに現地のスペースを測ってもらって
フレーム寸法を決めています。
扉や窓は平型蝶番を使って開閉させます。
またボールキャッチを使ってロック機構を
設けています。
ただ窓や扉を作る場合、隙間ができるので
気密性は悪くなります。
Aさんは気密性よりも扉や窓を重視されたため
このような設計になりました。
もし気密性を重視する場合は窓や扉を
作らずにはめ殺しにした方がいいです。
もしくは枠組みだけを作って市販の窓や
扉を取り付ける方法もあります。
これらの設計も全てCAD上で行えます。
サンルームは住宅壁やベランダ壁にビスで
固定しました。
またアジャスターを使って高さ調整を行い
天井に押し付けて固定しています。
アクリル板はフレームの上から外張りで
取り付けました。
板材の取付方法にはフレーム溝へのはめ込みと
外張りがあり、それぞれ特徴があります。
全体設計はこれで終了ですが、
一気に手配すると少しリスクがあります。
ベランダにピッタリ合うようにしていますが、
実際の取付時に寸法がずれていたり、
何かと干渉して取付かないことがあります。
これは既存のスペースを利用するDIYでは
よくあるトラブルです。
そこで部品手配を2回に分けて行います。
1回目の手配は枠組みだけを先に作ります。

もし既存スペースとの寸法違いや干渉などの
トラブルがあればこの時点で修正します。
そうすることでドアや扉、アクリル板など
事前に修正することが出来て
失敗するリスクを抑えられます。
2回目の手配は窓やドア、アクリル板など
残りの材料をまとめて用意します。
先に作った枠組みの寸法を再計測して
確認できるのでミスがあれば修正可能です。
既存スペースを利用するDIYでは
この方法で製作することが多いです。
手配を分けても全体費用は変わりませんが
工期が長くなる欠点があります。
これで設計が終了したので次は組み立てます。
4.3 ベランダ サンルーム組立
設計が終われば部品を手配します。
事前にCADで設計しておけばメーカーで
指定の長さにフレームをカットします。
そのため部品を組み立てるだけで作れます。
しかも大量の材料でも送料無料で自宅まで
メーカーが送ってくれるので有難いです。
組立作業は六角レンチで行います。
ボルトを締める作業で仮に間違えても
緩めてやり直すことができます。
何度でもトライできて初心者でも安心です。
アルミフレームやアルミパイプの組立ては六角ボルトを締めこむだけの簡単作業です。六角レンチ1本あれば全てを組み立てることができます。ウチの小学2年生の子供でもこの通り。誰が作っても同じように組みあがるので技術が要らず、初めての方やDIYしない人も安心して利用できます。
まずはサンルームの枠組みだけ作ります。
材料だけ届いてもすぐには作れないので
私の方で組図を作成してお渡しします。
一緒に現地で作ることはできませんが、
できる限りのサポートを行っています。

こちらが完成した枠組みです。
事前に洗濯物干しは取り外しました。
Aさんは初めてアルミフレームを使いましたが
週末だけで作業が終わられました。


左奥にある空いたスペースはここだけ独立した
窓を作って固定しています。

フレームが少し長い箇所があり10mmほど
自分で切断されました。
アルミフレームの切断は特殊な工具は不要で
金物ノコギリがあれば加工できます。
初めの段階でこのような寸法修正ができると
残りの材料に反映できるため助かります。
次に残りの材料をまとめて手配します。
残りのフレームは先に組立てた枠組みに
取り付けます。
この時便利な部品が後入れナットです。
ナットをフレーム溝に入れる場合、
端部から差し込むものが一般的です。
しかしそれだと一度分解する必要があり
とても大変です。
しかしこのナットを使えば溝の上から
挿入できるので分解せずに取付できます。
適切な部品を選定することで作業を大幅に
簡素化することができます。
そしてついに完成です!
Aさんと一緒に作ったベランダサンルームです。
とても手作りでDIYしたようには見えません。



透明なアクリル板を使っているので
景色はそのままキレイに見れます。
光も入るので開放感がありますね。
正面と左側面は窓になっているので
開放して風を取り込むこともできます。
住宅側の扉を開けるとそのままサンルームに
繋がっており、これまでとは別世界です。

床にタイルを敷き詰めてイスを置くことで
オープンカフェのような感じになりました。

こちらはベランダとつながる扉です。
動線は従来のまま残してありベランダを
行き来することができます。

これだけのDIYを初めて触る材料で作れるのが
オンライン共同DIYの魅力です。
業者に断られたサンルームですが、
ナントDIYにて自分で作ることが出来ました。
こちらの総額費用は約19万円(税込)です。
アルミフレームは個人でも購入できるように
なりました。
もし興味がある場合は是非触ってみて下さい。
メルカリやラクマ、YahooフリマなどでアルミフレームやG-funを手軽に購入する方法を紹介します。ホームセンターやオンラインショップにない部品でもSUS製部品であれば全て購入できます。フレーム材も1mm単位で購入できるので大変便利ですよ
5. さいごに
ベランダにサンルームをDIYしましたが、
如何だったでしょうか?
特に何もなかったスペースが全く別の
特別な空間として生まれ変わりました。
晴れた日はイスに座ってくつろげる空間として
天気が悪い日は洗濯物を干すサンルームとして
利用することもできます。
これからの生活の役に立ってくれるでしょう。
アルミ材は身近に多く使用されていますが、
DIYにはあまり利用されていません。
入手性が悪かったり使い慣れない材料で
不安があるからだと思います。
しかしアルミには木材ない特長があり、
大きな可能性を秘めています。
大変便利な材料ですがあまり身近にないため
初めて触って使いこなすには難しいです。
しかしDIYはもはや一人作業ではありません。
オンラインでも一緒に協力し合うことで
一人で難しいものも作れるようになります。
もしベランダにサンルームが欲しい方は
是非チャレンジしてみて下さい。
あなたにとって特別な空間ができますよ。
ちょっとした工夫ですが、アイディア次第で
できなかったことができるようになります。
もし興味がある方はぜひ作ってみてください。
気になる事があれば問い合わせフォームより
御連絡いただければと思います。
「お問い合わせ」
DIYがとても身近に感じられ、
理想なモノを手に入りますよ。
この記事が皆様の参考になれば幸いです。
アルミフレームやパイプを使ったDIYを
一緒にしてみませんか?
DIYする時間や工具がない
普段DIYをしないので自信がない
そんな方にも安心で手間がかからず
欲しい物が手に入るオンライン共同DIYです。
一人で考えるよりも複数人で考えた方が
よりいいアイデアも生まれます。
まず設計や構想は御自分で考えて
欲しいものをイメージしてください。
もし自分で加工から組み立てまでされる方は
必要に応じてアドバイスを致しますし、
手間な部品手配や加工をしたくない方は
こちらで設計して組み立てる状態の部品を
お送りすることもできます。
初めて使う材料で不安な方も安心して
チャレンジすることができますよ。
気に入った物が見つからない場合は
試してみては如何でしょうか?
詳しいサポート内容や進め方は
こちらで説明しています。
またこの材料を簡単に入手したい人向けの
サービスも実施しています。
1日以内にSUS社製商品のお見積りを
提出しています。
ホームセンターで入手できない部品も
こちらだと簡単に入手できます。
これまでのサポート事例はこちら。
「サポート事例集」
より詳しくアルミフレームやアルミパイプを
知りたい方は動画で実物を使った説明や
DIYしている様子を見ることができます。
カーポート サイドカバー をアルミフレームとアクリル板を使ってDIYしました。ガレージの開口部で採光をとりつつ、風や雨の侵入を防ぎます。アルミ製なので耐候性に優れて、しかもオシャレな雰囲気に仕上がっています。アルミフレームはポリカやアクリル板と相性がいいので簡単に組み合わせてDIYができました。
アルミフレームとアクリル板を使って薬局カウンターにパーテーションをDIYしました。天井とカウンターの間でアルミフレームを突っ張って固定して、そこにアクリル板を取付けています。お客様とやり取りをする部分は開口しており、逆に見せたくない部分にはアルミ複合板を取付けました。
玄関に十分な屋根がなく自転車が濡れてしまうので、後付けで屋根をDIYしました。黒塗装アルミフレームとポリカ板を使った屋根でシンプルな外観に仕上がりました。屋根のサイズは約1.5×2.0mで壁に直接固定しており柱がないのでスッキリしています。
ベランダから猫に景色を見せるためにアルミパイプを使ってベランダ自体をゲージにするDIYを行いました。隣のベランダとの行き来するための扉や布団が干せる物干し竿も一緒に作りました。アルミパイプでゲージの大枠を作って100均のワイヤーネットを柵として利用します。



